1LD·K
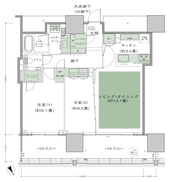
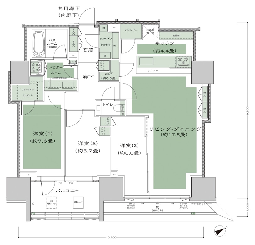
※掲載の図面は、施工上の都合・改良等により多少変更する場合があります。あらかじめご了承ください。 ※掲載の図面は本タイプの基本図面です。階数・列により間取りが一部異なる場合があります。詳細は図面集をご確認ください。
2LD·K+N+2WIC+SIC
2LD·K+N+2WIC
2LD·K+N+WIC+SIC
3LD·K+N+2WIC+SIC
3LD·K+N+WIC+SIC